Металлические стеллажи для тяжелых грузов — это профессиональное решение для хранения крупногабаритных или многотонных объектов на производстве и в логистических центрах. Конструкции рассчитаны на экстремальные нагрузки, устойчивы к деформациям и вибрациям, обеспечивая безопасное размещение станков, пресс-форм, металлопроката и промышленного оборудования. Благодаря модульной системе и усиленным компонентам стеллажи адаптируются под любые типы грузов, а использование тали и вертикального пространства позволяет хранить больше без расширения площадей. Внедрение таких систем сокращает время погрузочно-разгрузочных работ, минимизирует риски повреждения грузов и повышает общую производительность склада.
с талью и без
Стеллажи для тяжелых грузов весом до 1000 кг с полками частичного выдвижения и механизмом безопасности от одновременного выдвижения. Для облегчения работы могут комплектоваться талью.
| Высота секции, мм. | 2 000 - 2 700 |
| Ширина секции, мм. | 1 515 - 3 295 |
| Ширина линейки, мм. | до 10 000 |
| Длина полки, мм. | до 3 000 |
| Глубина, мм. | 800, 1000, 1 200 |
| Нагрузка на уровень, кг. | до 1 000 |
| На секцию, кг. | до 6 000 |
| Шаг перфорации стойки, мм. | 50 |
| Комплектация | без тали/с талью |
с талью и без
Вариант стеллажей для тяжелых грузов весом до 1400 кг, с полным выдвижением полок и механизмом защиты от одновременного выдвижения. Дополнительная возможность фиксации полок в 2х положениях. При потребности комплектуются талью.
| Высота секции, мм. | 2 000 - 2 700 |
| Ширина секции, мм. | 1 600 - 1 800 |
| Ширина линейки, мм. | до 10 000 |
| Длина полки, мм. | до 1 400 |
| Глубина, мм. | 800, 1 000, 1 200 |
| Нагрузка на уровень, кг. | до 1 400 |
| На секцию, кг. | до 6 000 |
| Шаг перфорации стойки, мм. | 50 |
| Комплектация | без тали/с талью |
полки полного выдвижения
Полезная нагрузка на полку до 1400 кг. В составе металлического стеллажа дополнительно ящики с разделителями и без.
| Высота секции, мм. | 2 000 - 2 700 |
| Ширина секции, мм. | 1 600 - 1 800 |
| Ширина линейки, мм. | до 10 000 |
| Длина полки, мм. | до 1 400 |
| Глубина, мм. | 800, 1 000, 1 200 |
| Нагрузка на уровень, кг. | до 1 400 |
| На секцию, кг. | до 6 000 |
| Шаг перфорации стойки, мм. | 50 |
| Комплектация | без тали/с талью |
настил - балки и полки
| Высота секции, мм. | 2 000 - 2 950 |
| Ширина, мм. | до 8 000 |
| Длина полки, мм. | до 1600 |
| Глубина, мм. | 600, 800, 1 200 |
| Нагрузка на полку, кг. | до 350 |
| На секцию, кг. | до 1500 |
| Шаг перфорации стойки, мм. | 50 |
настил - металлические полки
| Высота секции, мм. | 2 000 - 2 950 |
| Ширина, мм. | до 8 000 |
| Длина полки, мм. | до 1 600 |
| Глубина, мм. | 600, 800, 1 000 |
| Нагрузка на полку, кг. | до 350 |
| На секцию, кг. | до 1 500 |
| Шаг перфорации стойки, мм. | 50 |
с талью и без
| Высота секции, мм. | 2 000 - 2 950 |
| Ширина секции, мм. | 1 220 - 1 420 |
| Ширина линейки, мм. | до 10 000 |
| Длина полки, мм. | до 1300 |
| Глубина, мм. | 600, 800, 1000 |
| Нагрузка на уровень, кг. | до 200 |
| На секцию, кг. | до 1500 |
| Шаг перфорации стойки, мм. | 50 |
| Комплектация | без тали/с талью |
Металлические стеллажи с усиленной мобильной базой для хранения грузов общим весом до 350 кг на полку.
| Высота секции, мм. | до 3 130 |
| Ширина, мм. | до 10 000 |
| Длина полки, мм. | до 1800 |
| Глубина, мм. | до 1 000 |
| Нагрузка на полку, кг. | до 350 |
| На секцию, кг. | до 1 500 |
Персональный менеджер разработает для Вас проект размещения стеллажей, рассчитает цену и сопроводит подробным техническим описанием.
«Фирма «Сатурн» в Ростове-на-Дону занимается производством и реализацией
металлических стеллажей и оборудования для архива,
офиса, библиотеки, музея, склада.
Воспроизвести
видео
Познакомьтесь за 2 минуты с нашим предприятием онлайн
С 1990 года мы специализируемся на реализации комплексных решений, связанных с хранением.
«Фирма «Сатурн» сегодня - это собственное производство,
склад, офис и квалифицированный персонал.
Мы регулярно вводим в серийное производство
новые модели стеллажей и другого оборудования.
В каталоге выше представлена одна из таких моделей - стеллажи для хранения тяжелых грузов.

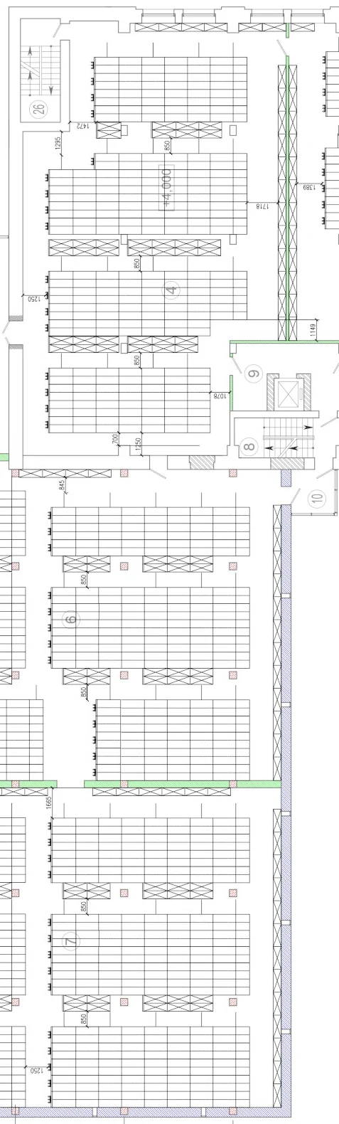
Разрабатываем индивидуальный проект расстановки стеллажей согласно всем требованиям надзорных служб, что позволяет наглядно увидеть количество оборудования.
Склад сырья и заготовок
Три цеха механической обработки:
Сварочный
Покрасочный
Упаковочный
Склад готовой продукции
Произведенную продукцию оперативно доставляем в назначенное место в любой уголок России и стран СНГ любым удобным транспортом.
Собственный штат сборщиков позволяет качественно собрать, установить, закрепить, подключить и настроить продукцию различного объема, сэкономив время клиента.